Ritzenhoff
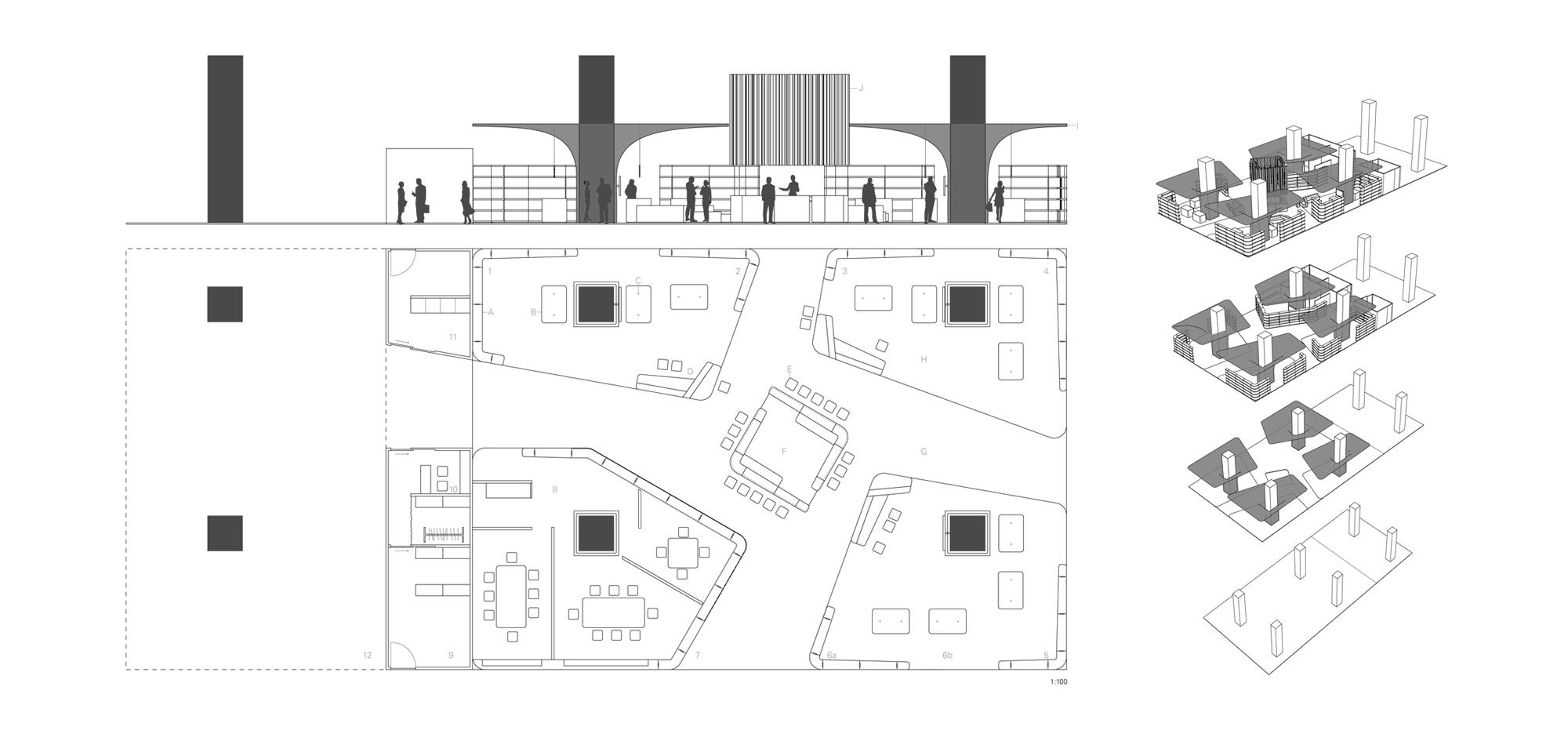
Exhibition stand at AmbienteFrankfurt am Main, Germany»An attention-getting roof to present ‘Tischarchitektur’, the new Ritzenhoff brand of architecture for the table, at the Ambiente trade fair.«
The orthogonal grid of the trade-fair hall is glossed over in favour of a vivacious urbanity. The bar and reception area lie at a ‘crossroads’. They form the focal point between the four ‘urban canyons’ whose translucent ‘buildings’ originate out of exhibition wall partitions. These ‘banners’ lure the viewer into the interior because the specially lit objects seen in silhouette are often only vaguely perceptible, as if behind a veil. Filigreed, dynamic radiance is the core statement made by Ritzenhoff design.
Project Factsheet
LocationFrankfurt am Main, Germany
Completion2010
Gross Floor Area400 sqm
Image CopyrightRitzenhoff AG











